气体消防系统选用、安装与建筑灭火器配置
编号:GJBT-1009
颁布时间:2007/6/1
是否常用:是
是否有效:现行有效
分类:消防设施
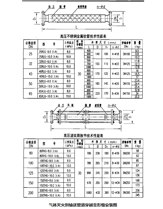
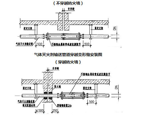
气体灭火剂输送管道穿越变形缝安装图

说明:1.当气体灭火剂输送管道需要穿越建筑物结构变形缝时,采用高压不锈钢金属软管或高压波纹膨胀节可有效消除管系变形应力,补偿管道径向位移,避免因地基不均匀沉降造成管道变形或损坏。
2.高压不锈钢金属软管、高压波纹膨胀节型号意义:
3.安装时,建筑结构变形缝两侧的灭火剂输送管道中心线应在同一水平线上。
4.在大口径(DN150、DN200)灭火剂输送管道或地基沉降量有可能略大于30mm的场合,也可在变形缝防火墙两侧各设置一个不锈钢金属软管或波纹膨胀节。
5.本图集高压不锈钢金属软管和高压波纹膨胀节依据南京海德蓝波·管机电有限公司提供的技术资料进行编制。